Property Features
Bramfield Road, Datchworth, Hertfordshire, SG3 6SA
Contact Agent
Hertford115 Fore Street
Hertford
Hertfordshire
SG14 1AS
Tel: 01992 558557
sales@simplyhomes.biz
About the Property
Simply Homes are delighted to bring to the market this stunning family home in immaculate decorative order throughout. Placed in the delightful rural location of Bull’s Green in Datchworth this property offers spacious and versatile living with a clean, modern style, yet is surrounded by beautiful open countryside with all the charm of local village life at your fingertips.
Accommodation:
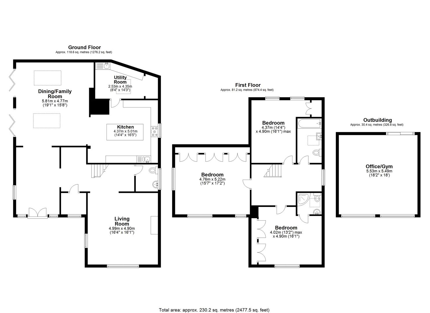
The house has a modern, stylish yet homely feel, and this appeal starts right at the entrance, where you are welcomed by an attractive beamed and tiled porch leading to the impressive solid wood double doors. Inside, the spacious hallway is flooded with natural light from the glazed panels to the front and the window to the side aspect. The hallway extends through an open access to the large dining/family room, and via an inner hallway to the living room, a small storage room, the stairs and conveniently placed downstairs cloakroom.
The living room is well lit by large dual aspect windows, is a good size and shape to accommodate any number of furniture options you may wish, and has a really stylish modern wood burner in the centre of the outside wall. This will be a super cosy room on those chilly winter evenings.
The large dining/family room is simply stunning. With two sets of infinity doors leading to the garden as well as two large sky lights, this room is bathed in natural light and is perfect as a living and entertaining space all year round. Again, the size and shape of this room gives you plenty of options as to how you furnish and use it and benefits from some lovely touches like the modern integrated wood burner and the vertical designer radiators.
Property Details
The modern fitted kitchen, with full height open access from the dining/family room is clean and bright with a huge amount of storage by way of a comprehensive range of wall mounted, floor mounted and full height cupboards. At its centre is a very impressive island, providing substantial closed and open storage as well as a terrific worktop/catering area. This is a well laid out, premium quality built, and practical working space that delivers functionality as well as pleasure to family or entertainment cooking. The kitchen is ably supported by a large utility/laundry room adjacent to it, really helping to declutter the main kitchen area.
From the ground floor hallway the attractive staircase with elegantly shaped banisters rises to the first floor, where the spacious upper hallway, nicely lit by a window to the side aspect, gives access to the three large bedrooms and the family bathroom. All of the bedrooms are well served with fitted wardrobes. The bedroom to the front of the house also has a lovely en-suite shower room.
An extremely desirable feature of this property is the large, brick built and tiled roof, detached outbuilding just to the side of the main house. This is a substantial space, being eighteen feet by eighteen feet, and with two full length triple panel windows to the front and its own separate access through sliding glazed doors at the rear this offers untold opportunities to you and your family as to how it may be best used. Anything from a home gym, home office (particularly as there is high speed fibre broadband), workshop, creative studio, or even a location for some kind of commercial operation, subject to the proper permissions, are easily imaginable.
Exterior:
Situated in a quiet rural location, surrounded by other substantial homes set well back from the roadway this property has a large front garden, laid mainly to lawn with the long gravel driveway approaching the main house alongside it. There is a double cart shed with a fully tiled roof, plenty of space for car parking, and ample opportunity to make more if required. Surrounded by mature shrubs, bushes and specimen trees the front garden frames the house beautifully to give a truly welcoming arrival. The rear garden, which can be entered directly from the drive through a gated timber archway, is made up of a number of different patio areas, sympathetically landscaped and paved to break up the space. Surrounded by attractive, scalloped fencing and lovely planting this is a superb private and intimate place for relaxing or entertaining and with the incredible dining/family room opening directly onto it, seamlessly incorporates the garden within the interior living space.
Location:
Datchworth Village offers a wide range of amenities including restaurants/pubs, village shops, cricket, rugby, and tennis clubs, and great walks with far reaching views across the beautiful Hertfordshire countryside that surrounds it. The picturesque and popular villages of Burnham Green and Tewin are just a few minutes away. Nearby, Welwyn Garden City and Stevenage provide expansive arrays of shops. This village also benefits from great connections into London and the North via Stevenage or Watton train stations, both only a short drive away, as well as speedy access north or south by road via J6 or 7 of the A1(M).
Buyers Information:
In compliance with the UK's Anti Money Laundering (AML) regulations, we are required to confirm the identity of all prospective buyers at the point of an offer being accepted and use a third party, Identity Verification System to do so. There is a nominal charge of £48 (per person) including VAT for this service. For more information, please refer to the terms and conditions section of our website.
Note to prospective purchasers - This property is owned by a member of the Simply Homes staff.
































