Property Features
Farquhar Street, Hertford, Hertfordshire, SG14 3BW
Contact Agent
Hertford115 Fore Street
Hertford
Hertfordshire
SG14 1AS
Tel: 01992 558557
sales@simplyhomes.biz
About the Property
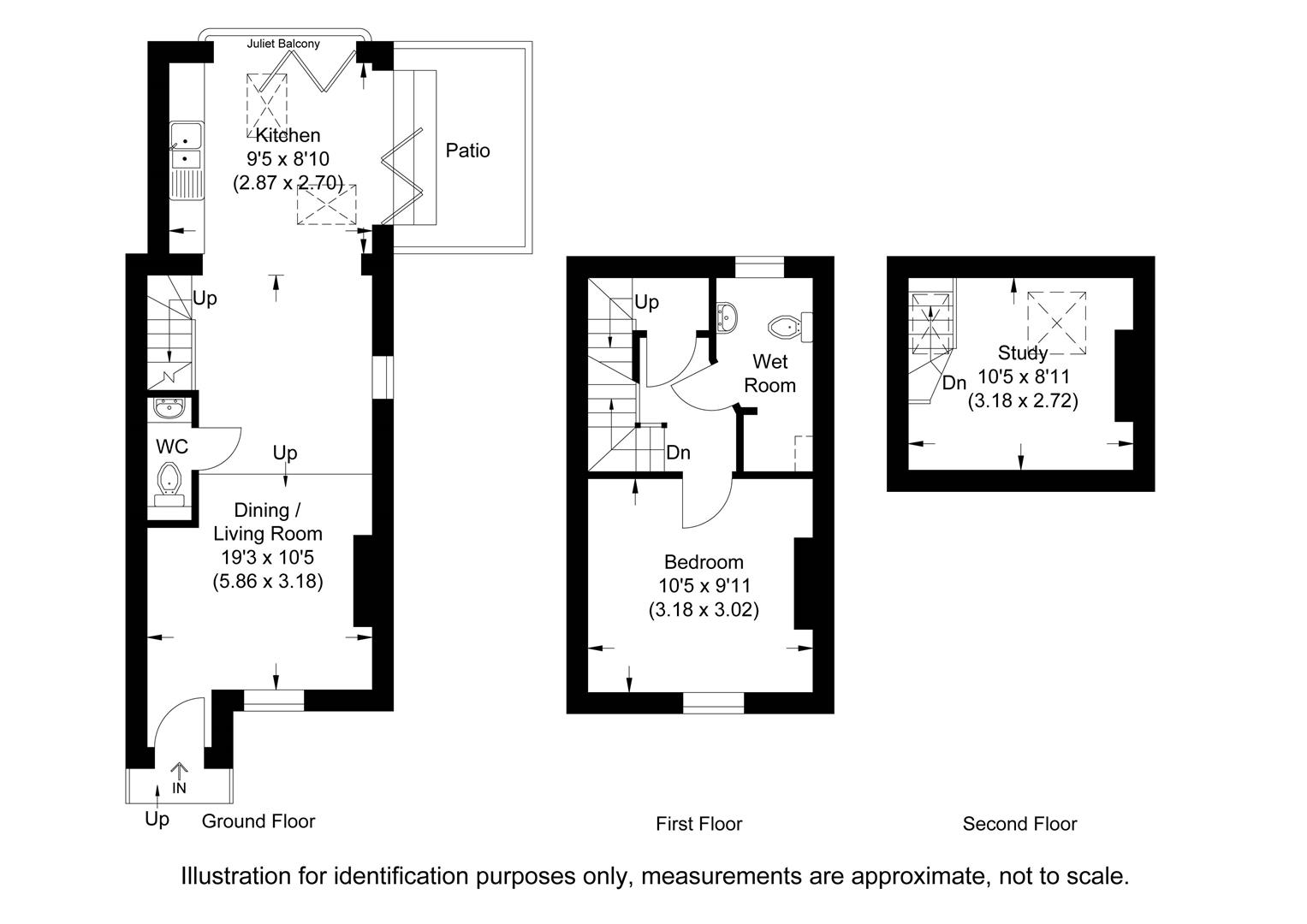
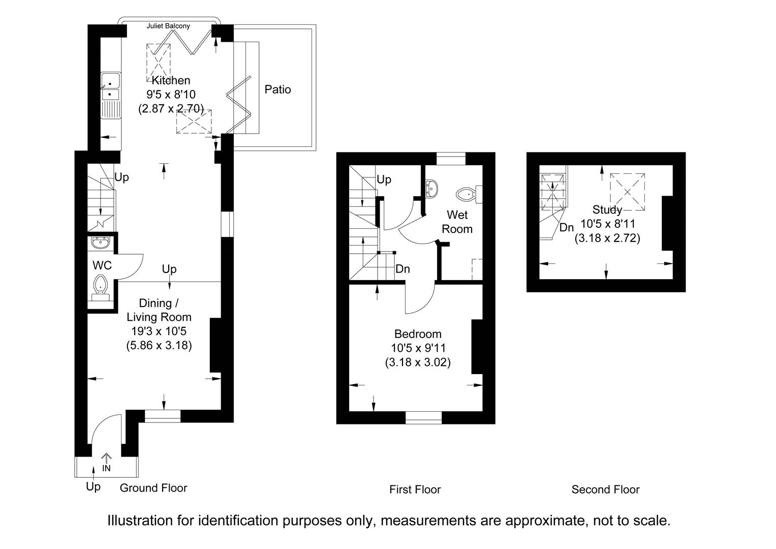
Permitted Development Applied – An exceptionally rare opportunity to purchase this 2-bedroom Victorian semi-detached home with off-street parking and large sunny rear garden. Convenient for both Hertford North station and the town centre.
Enter via the hallway with space for coats and boots, leading to the sitting/dining room with rear aspect sash window and log-burner. Leading through to the kitchen which benefits from a range of base and eye level units and freestanding appliances. The ground floor is also served by the family bathroom.
To the first-floor landing, which consists two good sized double bedrooms. The principle bedroom has its own feature fireplace.
To the exterior of the property, where it consists of a large 75-foot private garden with outstanding views of the Hertford rooftops. Returning to the front of the property, there is a good size driveway with enough space for at least two cars.
Farquhar Street is a exclusive road located in Bengeo, Hertford. The property is a short walk to a parade of shops, pubs/restaurants and a 10-minute walk to Hertford Town/Hertford North Train Line with links to London’s Moorgate and Kings Cross. The property is also with the catchment to Bengeo JMI primary school.
- Semi-Detached Cottage
- Enquire for further details on Permitted Development
- 2-Bedroom (Planning provides: 3-bedroom home)
- Prime Bengeo Location
- Large (South Facing) Rear Garden
- Off-Street Parking














