Property Features
Julian Walk, Hertford, Hertfordshire, SG14 2GT
Contact Agent
Hertford115 Fore Street
Hertford
Hertfordshire
SG14 1AS
Tel: 01992 558557
sales@simplyhomes.biz
About the Property
Summary:
Simply Homes are delighted to present this beautifully finished, high-specification two-bedroom home, just two years old and expertly combining traditional charm with contemporary style. Situated on the sought-after west side of Hertford, the property forms part of the prestigious new Blakemore Manor development.
Accommodation:
The attractive double-fronted façade, complete with a canopied porch and box bay window, sets a warm and inviting tone on arrival. Inside, the dual-aspect living room is flooded with natural light and features a second box bay window, creating a bright and versatile space. The sleek kitchen/dining room is fitted with a comprehensive range of base and eye-level units and integrated AEG appliances, offering both practicality and modern elegance. A generous cloakroom/WC completes the ground floor.
Upstairs, the first-floor landing leads to two well-proportioned bedrooms, each benefiting from its own neatly finished en-suite bathroom. The principal bedroom also includes a fitted wardrobe for added convenience. A large storage cupboard and an airing cupboard further enhance the functionality of the first-floor layout.
Exterior:
The rear garden has been thoughtfully landscaped and upgraded by the current owners to create an attractive, low-maintenance outdoor space. The property additionally benefits from a garage and an extra parking space, providing parking for two vehicles.
Property Details
Location:
Blakemore Manor is an impressive new development of 2, 3, and 4-bedroom homes located on the outskirts of Hertford and enjoying easy access to the historic Panshanger Park (1000 acres), with its beautiful lakes, woodlands and peaceful walking trails just moments away. Hertford North railway station is less than a mile away, with Hertford East approximately two miles from the development. Several London terminals can be reached in under an hour, and Stansted Airport is just over a 30-minute drive, making this an ideal location for commuters and frequent travellers alike.
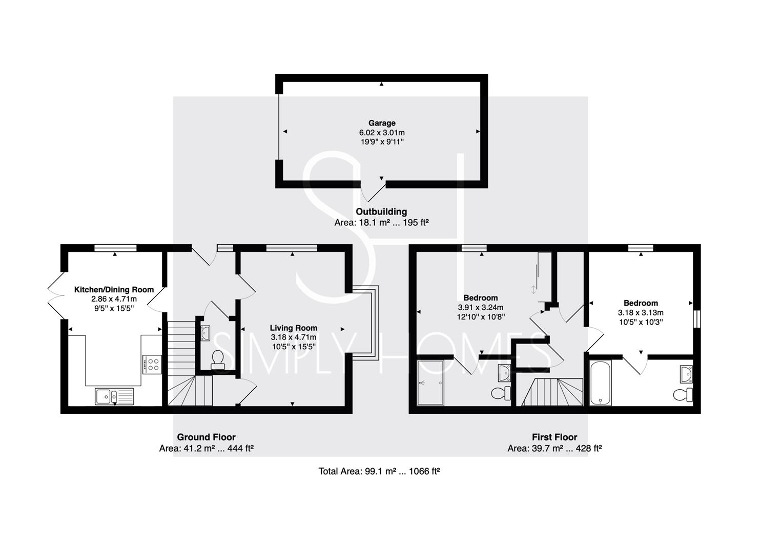
- Ground Floor -
Entrance Hallway
Claokroom/WC
Living Room
3.18 x 4.71m (10'5" x 15'5")
Kitchen/Dining Room
2.86 x 4.71m (9'4" x 15'5")
- First Floor -
Landing
Bedroom One
3.91 x 3.24m (12'9" x 10'7")
En-suite
Bedroom Two
3.18 x 3.13m (10'5" x 10'3")
En-suite
Storage
- Exterior -
Driveway
Garage
6.02 x 3.01m (19'9" x 9'10")
Rear garden
Buyers Information:
In compliance with the UK's Anti Money Laundering (AML) regulations, we are required to confirm the identity of all prospective buyers at the point of an offer being accepted and use a third party, Identity Verification System to do so. There is a nominal charge of £48 (per person) including VAT for this service. For more information, please refer to the terms and conditions section of our website.




















